Нержавеющая муфта с внутренней резьбой - деталь трубопровода, предназначенная для соединения элементов трубопровода в единую систему. Муфты с трубной резьбой простые и надежные в эксплуатации. Данное соединение изготавливается из черной либо нержавеющей стали, латуни, меди и прочих металлов.
В зависимости от технических задач нержавеющие муфты изготавливаются равнопроходными и переходными.
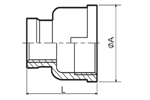
Равнопроходные нержавеющие муфты используются для прямого соединения двух труб либо элементов трубопровода с одним диаметром. Переходные нержавеющие муфты предназначены для соединения отрезков труб, элементов трубопровода разных диаметров.
Международное название: REDUCING SOCKET FEMALE/FEMALE
Номинальное давление: 20 bar (150LB)
Тип резьбы: BSPP

|
Условный размер, мм |
|
мм |
Наружный диаметр (A), мм |
Общая |
Вес, кг |
|---|---|---|---|---|---|
|
Дюймы |
DN |
|
|
|
|
|
1/2х3/8 |
15х10 |
21,3х17,2 |
29 |
34 |
0,04 |
|
3/4х3/8 |
20х10 |
26,9х17,2 |
36 |
38 |
0,06 |
|
3/4х1/2 |
20х15 |
26,9х21,3 |
37 |
37 |
0,06 |
|
1х1/2 |
25х15 |
33,7х21,3 |
43 |
42 |
0,09 |
|
1х3/4 |
25х20 |
33,7х26,9 |
43 |
42 |
0,09 |
|
1 1/4х1/2 |
32х15 |
42,4х21,3 |
52 |
48 |
0,1 |
|
1 1/4х3/4 |
32х20 |
42,4х26,9 |
52 |
48 |
0,15 |
|
1 1/4х1 |
32х25 |
42,4х33,7 |
52 |
52 |
0,15 |
|
1 1/2х1 |
40х25 |
48,3х33,7 |
59 |
53 |
0,18 |
|
1 1/2х1 1/4 |
40х32 |
48,3х42,4 |
59 |
53 |
0,2 |
|
2х1 1/4 |
50х32 |
60,3х42,4 |
72 |
56 |
0,27 |
|
2х1 1/2 |
50х40 |
60,3х48,3 |
72 |
57 |
0,27 |
|
2 1/2х1 1/2 |
65х40 |
76,1х48,3 |
85 |
60 |
0,36 |
|
2 1/2х2 |
65х50 |
76,1х60,3 |
85 |
61 |
0,39 |
|
3х2 |
80х50 |
88,9х60,3 |
100 |
62 |
0,48 |
|
3х2 1/2 |
80х65 |
88,9х76,1 |
100 |
62 |
0,51 |